Предложения
Весь объект: 2 040 м²
100 000 ₽/м²
204 000 000 ₽
Статус
Строящийся
Планируемая дата готовности
II квартал 2025 г
Высота потолков
7 м
Пол
Антипыль
Нагрузка на пол
7 т/м²
Электроснабжение
Текущее подключение: 200 кВт
Газоснабжение
Локальное
Водоснабжение
Локальное
Водоотведение
Локальное
Цена не включает
НДС
Земли промышленности
0,7 Га
Площадь
0,7 Га
Юридический статус
Собственность
Категория
Земли промышленности
Характеристики
Статус готовности
Строящийся
Планируемая дата готовности
II квартал 2025 г
Тип строительства
Новое
Общая площадь земельного участка
0,7 Га
Общая площадь застройки
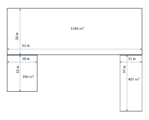
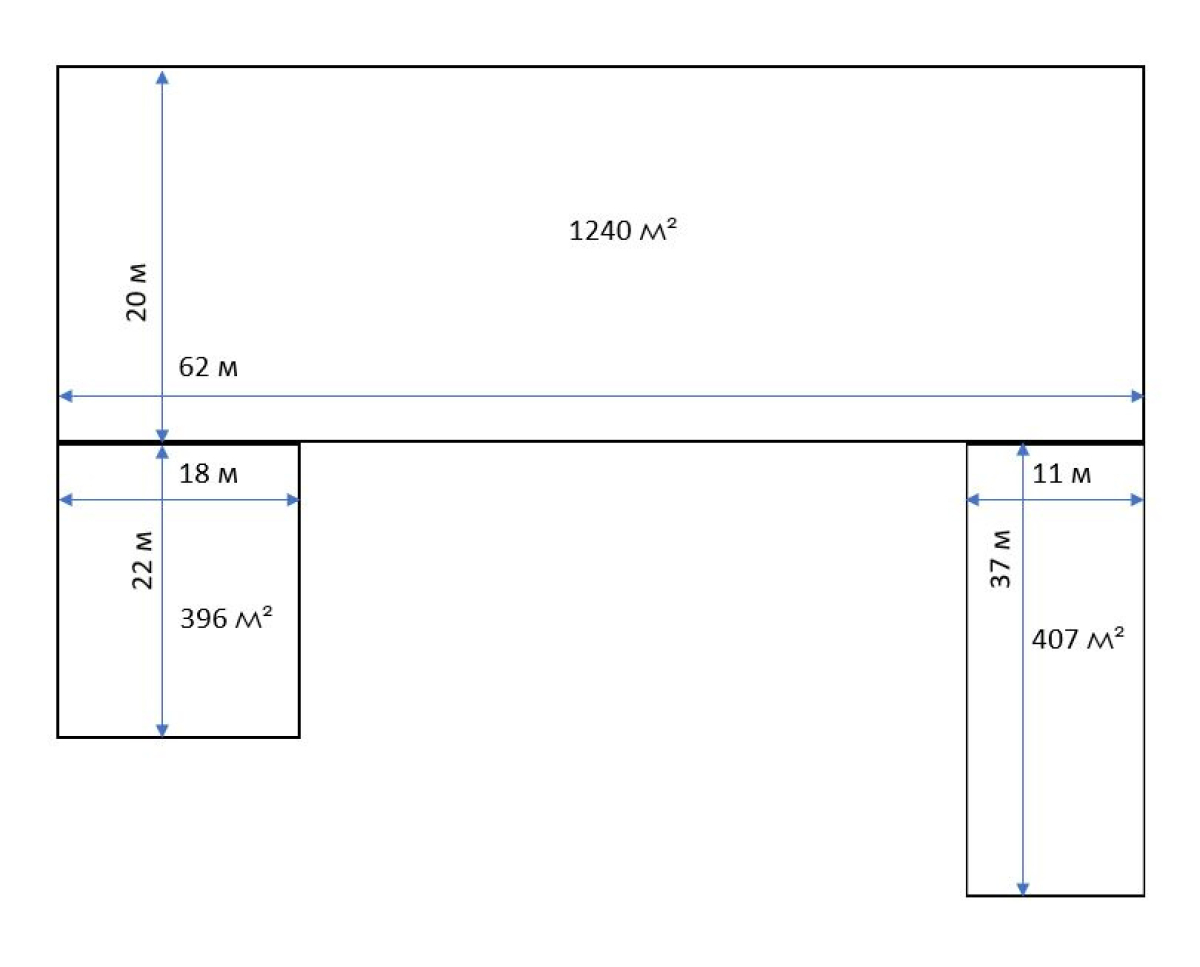
2 040 м²
Здания
Производственно-складское: 1 240 м²,
Производственно-складское: 400 м²,
Производственно-складское: 400 м²
Производственно-складское: 400 м²,
Производственно-складское: 400 м²
Инфраструктура
Огороженная территория
Подписаться на новости
Подпишитесь на наш телеграм-канал, чтобы узнавать о наших последних новостях и специальных предложениях.
Перейти в телеграм
Подписаться на аналитику
Раз в квартал получайте аналитические статьи, обзоры, исследования и новости о состоянии рынков коммерческой недвижимости.













