Предложения

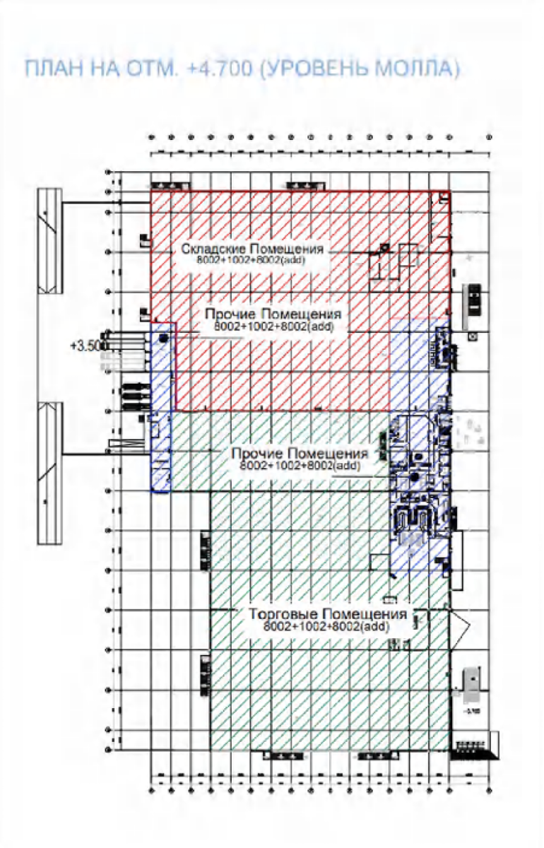
Субаренда, Сухой склад: 9 781 м²
1 535 ₽/м²/мес.
15 013 835 ₽/мес.
6 фото
6 планов
Тип
Сухой склад
Статус
Построен
Год постройки
2006 г
Этаж
1, 2 этаж
Высота потолков
8,1 м
Пол
Антипыль,
Ровный бетонный
Ровный бетонный
Нагрузка на пол
1,3 т/м²
Ворота под фуру
4 шт
Электроснабжение
Текущее подключение: 1 000 кВт
Арендная ставка включает
НДС,
коммунальные услуги,
эксплуатационные расходы
коммунальные услуги,
эксплуатационные расходы
Характеристики
Статус готовности
Построен
Год постройки
2006 г
Общая площадь застройки
9 781 м²
Этажность
1 - 2 этажа
Инфраструктура
Огороженная территория,
КПП,
Кафе/столовая,
Парковка для легкового транспорта,
Парковка для грузового транспорта
КПП,
Кафе/столовая,
Парковка для легкового транспорта,
Парковка для грузового транспорта
Расположение
Район
Всеволожский район
Подписаться на новости
Подпишитесь на наш телеграм-канал, чтобы узнавать о наших последних новостях и специальных предложениях.
Перейти в телеграм
Подписаться на аналитику
Раз в квартал получайте аналитические статьи, обзоры, исследования и новости о состоянии рынков коммерческой недвижимости.





























































