- Главная
-
Аренда
- Производства
-
во Всеволожске
Предложения

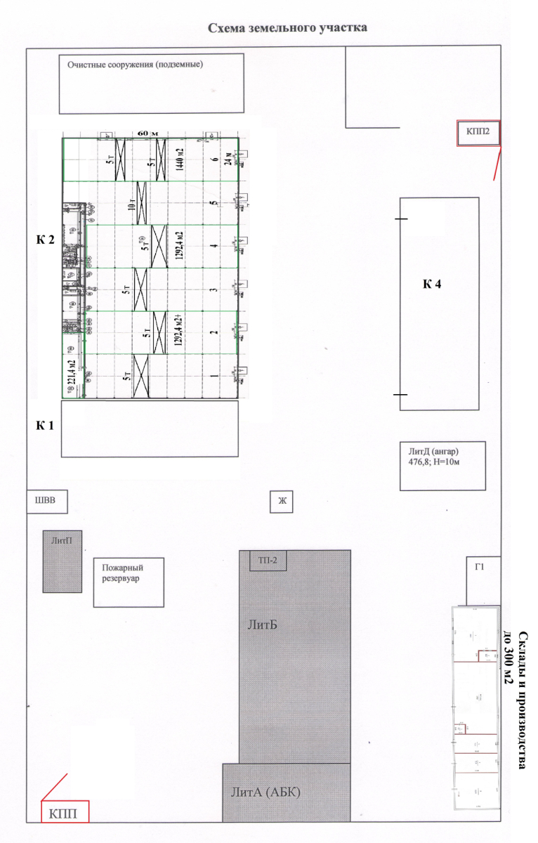
Производство-склад: 946,9 — 1 934 м²
750 ₽/м²/мес.
от 710 175 до 1 450 500 ₽/мес.
3 фото
1 план
Тип
Производство-склад
Статус
Построен
Год постройки
2016 г
Этаж
1 этаж
Температурный режим
18 - 22 °С, Газовая котельная
Высота потолков
6,2 - 7 м
Шаг колонн
6 x 24 м
Пол
Антипыль,
Ровный бетонный
Ровный бетонный
Нагрузка на пол
5 т/м²
Ворота под погрузчик
2 шт 4 x 4,5 м
Кран-балка
5 т x 1 шт
Электроснабжение
Текущее подключение: 110 кВт, увеличение до 150 кВт
Водоснабжение
Центральное
Водоотведение
Центральное
УСН
Да
Инженерное оснащение
Пожарные гидранты,
Охранная сигнализация,
Система видеонаблюдения
Охранная сигнализация,
Система видеонаблюдения
Арендная ставка включает
теплоснабжение
Арендная ставка не включает
электроэнергия
Характеристики
Статус готовности
Построен
Год постройки
2016 г
Общая площадь застройки
9 500 м²
Этажность
1 этаж
Инфраструктура
Огороженная территория,
КПП,
Кафе/столовая,
Зона отстоя грузового транспорта,
Парковка для легкового транспорта,
Парковка для грузового транспорта
КПП,
Кафе/столовая,
Зона отстоя грузового транспорта,
Парковка для легкового транспорта,
Парковка для грузового транспорта
Расположение
Район
Всеволожский район
Общественный транспорт до метро
Да
Подписаться на новости
Подпишитесь на наш телеграм-канал, чтобы узнавать о наших последних новостях и специальных предложениях.
Перейти в телеграм
Подписаться на аналитику
Раз в квартал получайте аналитические статьи, обзоры, исследования и новости о состоянии рынков коммерческой недвижимости.























