- Главная
-
Аренда
- Производства
-
на Октябрьской набережной
Предложения

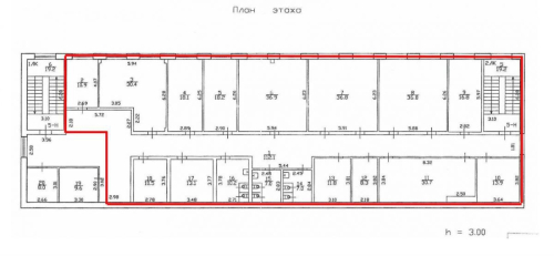
Производство-склад: 2 090,5 м²
980 ₽/м²/мес.
2 048 690 ₽/мес.
6 фото
2 плана
Срок освобождения
01.02.2026
Тип
Производство-склад
Статус
Построен
Этаж
1 этаж
Температурный режим
18 - 22 °С, Центральное отопление
Высота потолков
11,8 м
Шаг колонн
6 x 18 м
Пол
Ровный бетонный
Нагрузка на пол
5 т/м²
Кран-балка
5 т x 3 шт,
10 т x 2 шт
10 т x 2 шт
Электроснабжение
Текущее подключение: 100 кВт
Водоснабжение
Центральное
Водоотведение
Центральное
Инженерное оснащение
Пожарная сигнализация,
Система видеонаблюдения,
Система оповещения,
Контроль доступа (СКУД)
Система видеонаблюдения,
Система оповещения,
Контроль доступа (СКУД)
Арендная ставка включает
НДС
Арендная ставка не включает
коммунальные услуги
Характеристики
Статус готовности
Построен
Расположение
Район
Невский
Ближайшее метро
м. Пролетарская
- 4 840 метров
- 66 мин. пешком
Подписаться на новости
Подпишитесь на наш телеграм-канал, чтобы узнавать о наших последних новостях и специальных предложениях.
Перейти в телеграм
Подписаться на аналитику
Раз в квартал получайте аналитические статьи, обзоры, исследования и новости о состоянии рынков коммерческой недвижимости.

























